Резултати: 3283
Страница
Airports
Какви характеристики трябва да има един отводнителен канал за да издържи теглото от 550 тона на Airbus A 380? Как се може капацитета на отводнителната система да се справи с все по-честите интензивни валежи ? Какво става до повърхностните води в...
Страница
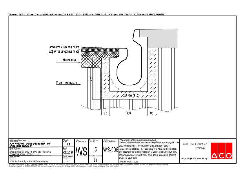
ACO Multitop
ACO Multitop е водоплътен капак за ревизионна шахта, специално разработен за приложение в тунели. Произведен от сферографитен чугунс интегрирано уплътнение, устойчиво на на масла и горива. ACO Multitop Водоплътни капаци с болтово заключване Клас...

